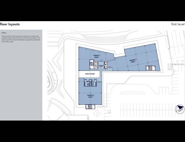
Premium - Grade Office Space to Lease – Gateway East, Waterfall City, Midrand Position your business at Gateway East, Waterfall City – one of Gauteng’s most prestigious corporate addresses. Strategically located on Magwa Crescent, directly adjacent to the Mall of Africa, Gateway East offers unrivalled exposure, world-class design, and premium amenities for businesses seeking a high-profile corporate headquarters. Property Highlights: *Size Availability: FROM -500sqm upwards *Architectural Design: Contemporary facetted façade with louvres and flush-glazed glass, offering bold signage opportunities. *Efficient Layouts: Floorplates of ±1,600m² with efficiencies above 90% – flexible for single or multiple tenants. Premium Features: *Double-volume lobby with seamless integration to the Mall of Africa piazza. *Dedicated porte cochere for VIP arrival and visitor parking. *Landscaped outdoor terraces and rooftop spaces with panoramic views. *Future-proofed office floors for flexible subdivisions and tenant growth. Amenities & Infrastructure: *Restaurants on-site with outdoor seating spilling onto the piazza. *Extensive basement parking with secure lift access to office levels. *Green-focused spaces including shaded terraces and landscaped roof gardens. *Secure environment with 24-hour access control. *Direct pedestrian and vehicular access to the Mall of Africa, public transport routes, and major highways (N1, Allandale Road). Location Advantages: *In the heart of Waterfall City, one of South Africa’s most successful mixed-use precincts. *Unparalleled visibility onto Magwa Crescent with access to Sandton, Johannesburg, Pretoria, and OR Tambo International Airport. *Surrounded by multinational corporates, financial institutions, and technology firms. Gateway East is designed to meet the needs of leading corporates, multinationals, and blue-chip tenants looking for a premium, future-ready office environment. Contact us today to arrange a confidential viewing and secure your place in Waterfall City’s newest corporate landmark. Availability: 2026-11-01
Rental R 3 472 200
Building Size12000 m2
Price Per SQMR 289 m2
Land Size12000 m2
Type of PropertyBusiness
Last Updated19 Mar 2026
Add Email Alert
To receive emails for similar properties in Waterfall!