R 3 472 200 | business property to rent in waterfall

Property Description

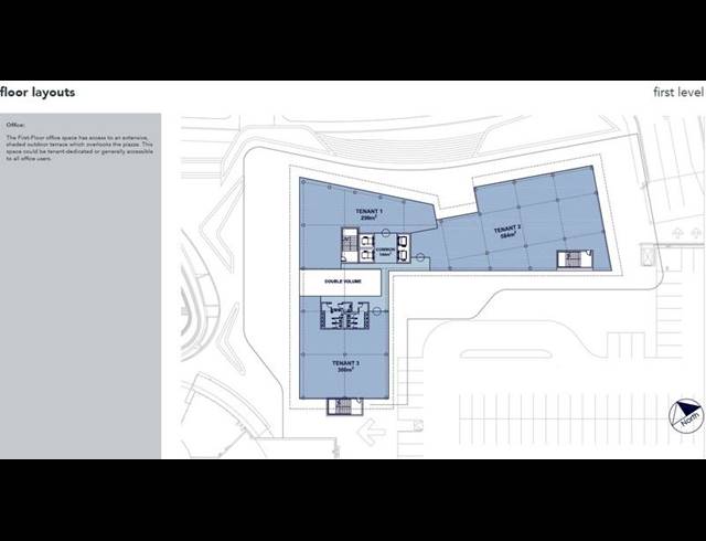
Premium - Grade Office Space to Lease – Gateway East, Waterfall City, Midrand Position your business at Gateway East, Waterfall City – one of Gauteng’s most prestigious corporate addresses. Strategically located on Magwa Crescent, directly adjacent to the Mall of Africa, Gateway East offers unrivalled exposure, world-class design, and premium amenities for businesses seeking a high-profile corporate headquarters. Property Highlights: *Size Availability: FROM -500sqm upwards *Architectural Design: Contemporary facetted façade with louvres and flush-glazed glass, offering bold signage opportunities. *Efficient Layouts: Floorplates of ±1,600m² with efficiencies above 90% – flexible for single or multiple tenants. Premium Features: *Double-volume lobby with seamless integration to the Mall of Africa piazza. *Dedicated porte cochere for VIP arrival and visitor parking. *Landscaped outdoor terraces and rooftop spaces with panoramic views. *Future-proofed office floors for flexible subdivisions and tenant growth. Amenities & Infrastructure: *Restaurants on-site with outdoor seating spilling onto the piazza. *Extensive basement parking with secure lift access to office levels. *Green-focused spaces including shaded terraces and landscaped roof gardens. *Secure environment with 24-hour access control. *Direct pedestrian and vehicular access to the Mall of Africa, public transport routes, and major highways (N1, Allandale Road). Location Advantages: *In the heart of Waterfall City, one of South Africa’s most successful mixed-use precincts. *Unparalleled visibility onto Magwa Crescent with access to Sandton, Johannesburg, Pretoria, and OR Tambo International Airport. *Surrounded by multinational corporates, financial institutions, and technology firms. Gateway East is designed to meet the needs of leading corporates, multinationals, and blue-chip tenants looking for a premium, future-ready office environment. Contact us today to arrange a confidential viewing and secure your place in Waterfall City’s newest corporate landmark. Availability: 2026-11-01


Property Details

Rental R 3 472 200

Building Size12000 m2

Price Per SQMR 289 m2

Land Size12000 m2

Type of PropertyBusiness

Last Updated19 Mar 2026

Property Location

Similar Property in nearby suburbs

Agent

A B

Share        

Add Email Alert
To receive emails for similar properties in Waterfall!


Close